Aktualizované Rôzne

V Lozorne vznikne rekreačná zóna: Pri jazere postavia chaty aj športoviská

Lokalitu, ktorá je dnes zarastená náletovými drevinami, by mali už čoskoro oživiť rekreačné domy, multifunkčné ihriská aj tenisové kurty.

Ilustračný obrázok k článku V Lozorne vznikne rekreačná zóna: Pri jazere postavia chaty aj športoviská
4
Galéria
Zdroj: EIA

Okolie vodnej nádrže Lozorno už nebude také pokojné ako doteraz. Výstavba rekreačných domov, doplnených o športovo-oddychovú časť, by sa mala rozbehnúť už tento rok. Projekt zatiaľ čaká na všetky potrebné povolenia.

Domy aj športoviská

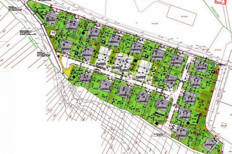
Pozemok, na ktorom sa chystá výstavba, má rozlohu 27 022 metrov štvorcových. Nachádza sa v severnej časti vodnej nádrže Lozorno. Momentálne na ňom rastú prevažne náletové dreviny.

Podľa územného plánu obce je toto územie určené na rekreačno-športové využitie. Pozemok sa podľa informácií v zámere v súčasnosti využíva ako výbeh a pastviny pre kone. Ako uvádza reality.etren­d.sk, zámer predpokladá variantné riešenie celého komplexu. Prvý počíta s vybudovaním 21 samostatne stojacích objektových jednotiek slúžiacich každodenným športovo-relaxačným a oddychovým účelom.

Rekreačné domy budú pravdepodobne murované, buď dvojpodlažné, alebo jednopodlažné s ďalším ustúpeným podlažím. Viac ako polovica pozemku by mala byť pokrytá zeleňou.

V druhom predloženom variante sa plánuje s 23 rekreačnými domami, čím sa zredukujú športové priestranstvá. K projektu, samozrejme, patria aj parkovacie miesta. Bude ich buď 63, alebo 69. Komplex s názvom Lake Relax Lozorno by mali vybudovať do dvoch rokov. Projekt zhltne takmer dva milióny eur.

Projekt stopli

Občianske združenie Lozorno pre občanov na sociálnej sieti informovalo, že na Okresnom úrade v Malackách bola investorom stiahnutá žiadosť projektu Lake Relax Lozorno – posudzovanie vplyvov na životné prostredie.

„Znamená to, že realizácia projektu Lake Relax Lozorno v stave, v akom bol predložený, je zastavená. Kladiem si otázku, kde sa asi stala chyba, keď už druhý väčší projekt sám investor stiahol? Keď totiž dôjde na vec a prešetruje sa správnosť postupu a reálna oprávnenosť realizácie projektu, dôjdu k záveru, že je projekt nepriechodný,“ uvádza zástupkyňa OZ Lozorno pre občanov Radka Švaleková.

Oslovili sme obec Lozorno aj Okresný úrad v Malackách, momentálne čakáme na potvrdenie informácií OZ Lozorno pre občanov.

Lake Relax Lozorno
4
Galéria
Zdroj: EIA
Zdroj: bratislava.dnes24.sk
Najčítanejšie v regióne
Najčítanejšie na Dnes24.sk
Magazín
Najčítanejšie v regióne
Najčítanejšie zo Slovenska
SLEDUJTE NÁŠ INSTAGRAM