Bratislava24.sk

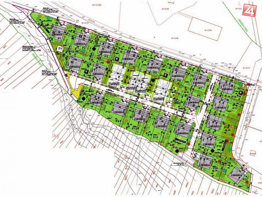
Galéria k článku V Lozorne vznikne rekreačná zóna: Pri jazere postavia chaty aj športoviská


Zdroj: EIA
1 / 4