Bratislava24.sk

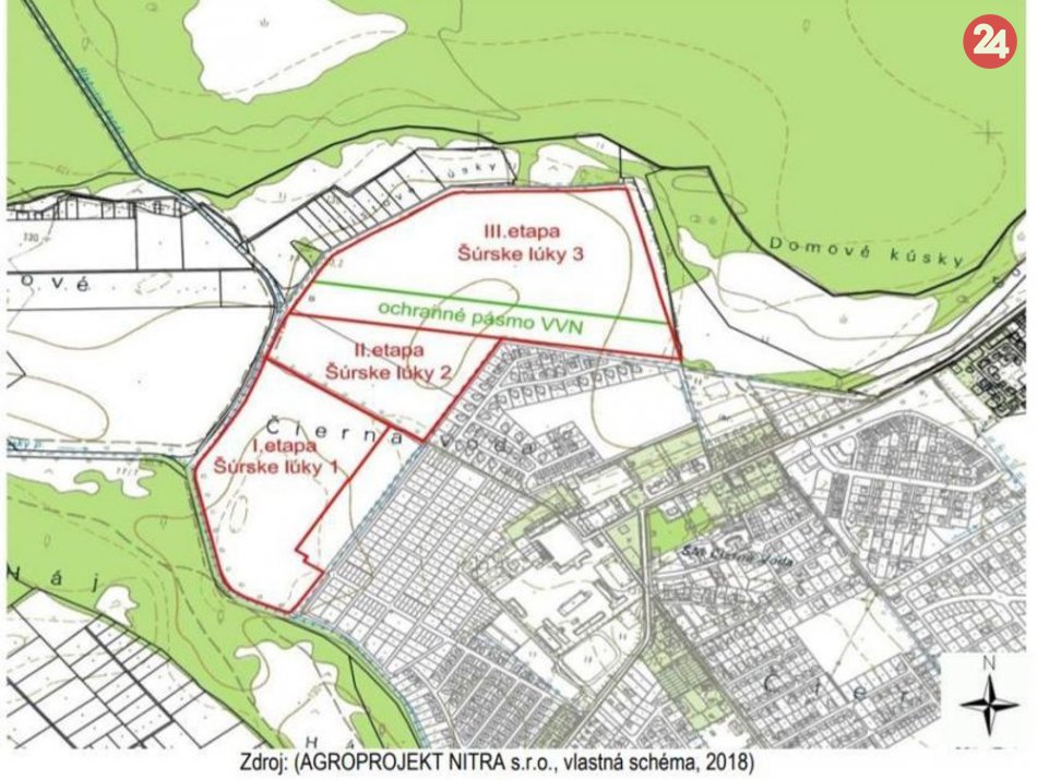
Galéria Projekt Šúrske lúky pri Chorvátskom Grobe


Zdroj: EIA
2 / 8